Este texto puede estar traducido por Google Translate y puede tener errores.
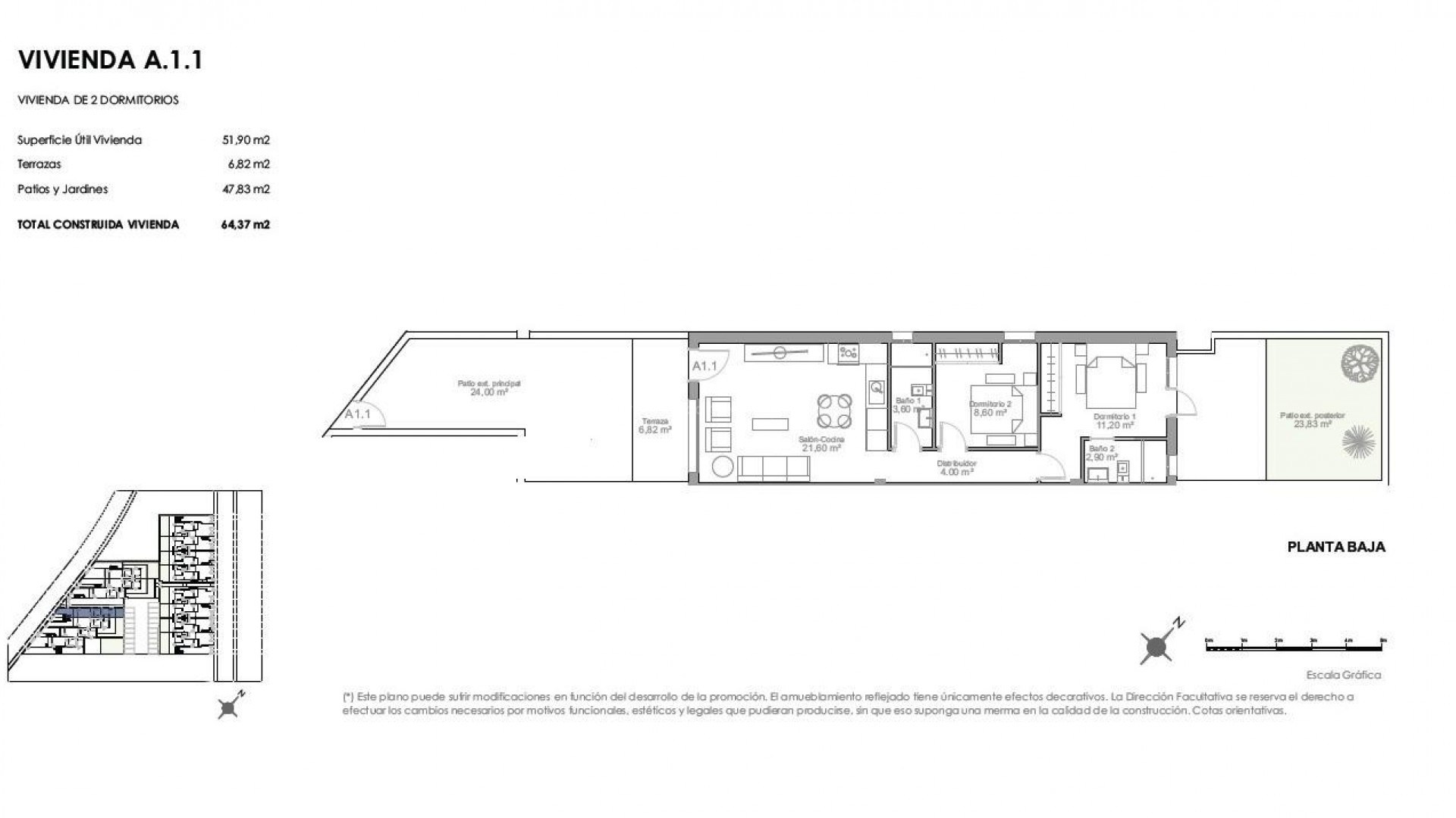
Viviendas de nueva construcción a solo 200 metros de la playa en Puerto de Mazarrón Vida costera exclusiva en la Costa Cálida Presentamos una nueva promoción residencial de viviendas modernas en Puerto de Mazarrón, situada a solo 200 metros de la hermosa Playa Negra. Ubicado en una de las zonas costeras más codiciadas de la región de Murcia, este proyecto ofrece una oportunidad excepcional para disfrutar de la vida mediterránea cerca del mar, de los servicios esenciales y del entorno natural. Puerto de Mazarrón es conocido por sus impresionantes playas, sus aguas cristalinas, su encantador puerto deportivo y su ambiente relajado. Con excelentes servicios, opciones de ocio al aire libre y un clima cálido durante todo el año, es un destino ideal tanto para vivir como para pasar las vacaciones. Diseño moderno y distribuciones funcionales Esta exclusiva promoción se compone de 30 viviendas contemporáneas de 2 dormitorios y 1 o 2 baños, cuidadosamente diseñadas para ofrecer comodidad, estilo y eficiencia. El complejo de baja altura incluye viviendas en la planta baja con terrazas y jardines privados, así como viviendas en la primera planta con terrazas y soláriums privados en la azotea. Las viviendas disponen de plazas de aparcamiento privadas, ya sea en la propiedad o dentro de la residencia. Las viviendas están orientadas para aprovechar al máximo la luz natural, con espacios diáfanos, grandes ventanales y acabados de primera calidad. La primera fase ofrece viviendas personalizables con distribuciones funcionales que se pueden adaptar a las necesidades de su estilo de vida. Las viviendas de la planta baja incluyen un jardín privado, un patio trasero y aparcamiento en la parcela o en la comunidad. Las viviendas de la última planta ofrecen una zona de acceso privado en la planta baja, terraza en la primera planta y solárium en la azotea, además de aparcamiento asignado. Los extras opcionales incluyen piscinas privadas en las terrazas de la planta baja o jacuzzis en los soláriums. Especificaciones de alta calidad Cada propiedad incluye Puerta de entrada reforzada Preinstalación para aire acondicionado por conductos Baños completos con muebles, espejos y mamparas de ducha Espacios exteriores diseñados para barbacoas, pérgolas y zonas de descanso Esta comunidad residencial ofrece un entorno seguro, familiar y consolidado, a poca distancia de supermercados, colegios, servicios médicos, parques y la playa. Ubicación privilegiada en Puerto de Mazarrón Distancias a puntos de interés clave Playa Negra 0,2 km Puerto deportivo de Mazarrón 2 km Centro comercial Mazarrón Park 5 km Cartagena 35 km Ciudad de Murcia 70 km Aeropuerto de Murcia Corvera 45 km Campos de golf Camposol y Hacienda del Álamo 25-35 km Disfrute de los deportes acuáticos, el senderismo y el ciclismo en la cercana Sierra de las Moreras, y descubra lo mejor del estilo de vida de la Costa Cálida. Haga del Mediterráneo su hogar No pierda la oportunidad de adquirir una propiedad de nueva construcción a pocos pasos de la playa en Puerto de Mazarrón. Póngase en contacto con nosotros hoy mismo para conocer la disponibilidad, los detalles y concertar una cita para visitarla. 441
Esta información que se proporciona aquí está sujeta a errores y no forma parte de ningún contrato. La oferta se puede cambiar o retirar sin previo aviso. Los precios no incluyen los costes de compra