Este texto puede estar traducido por Google Translate y puede tener errores.
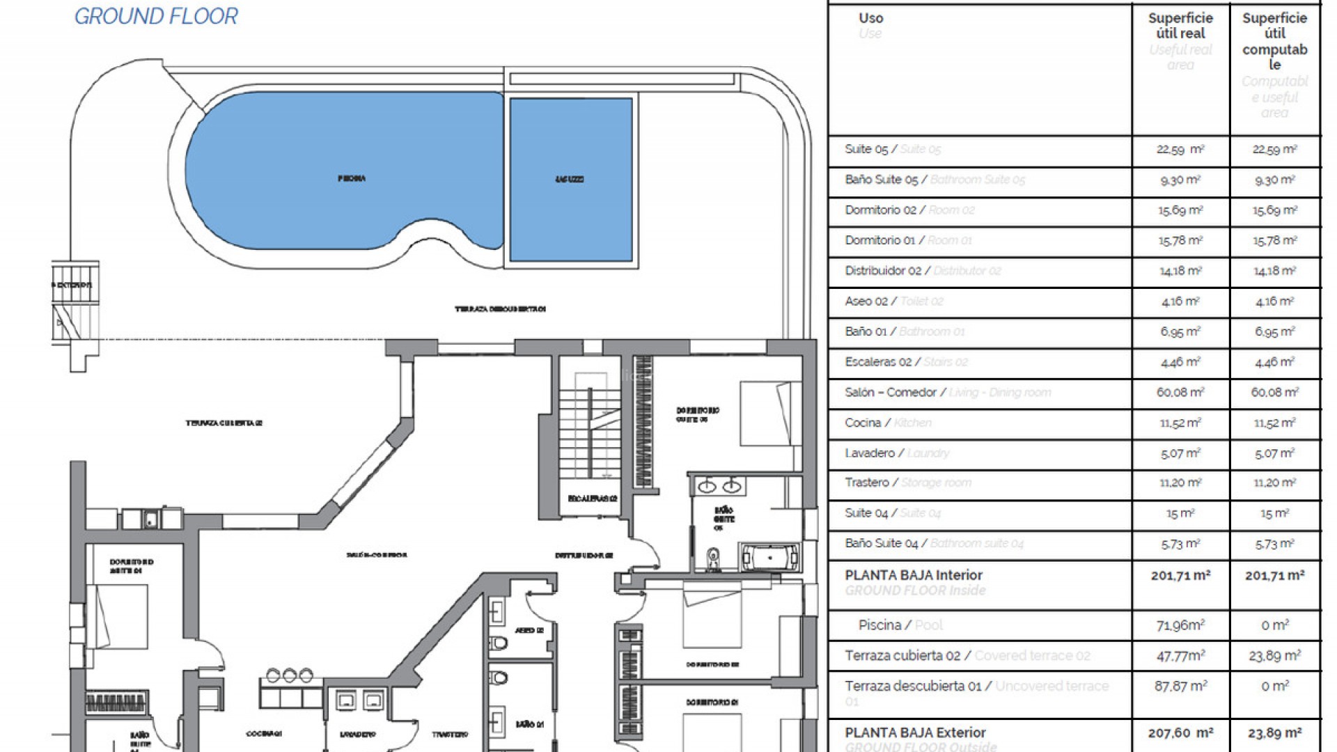
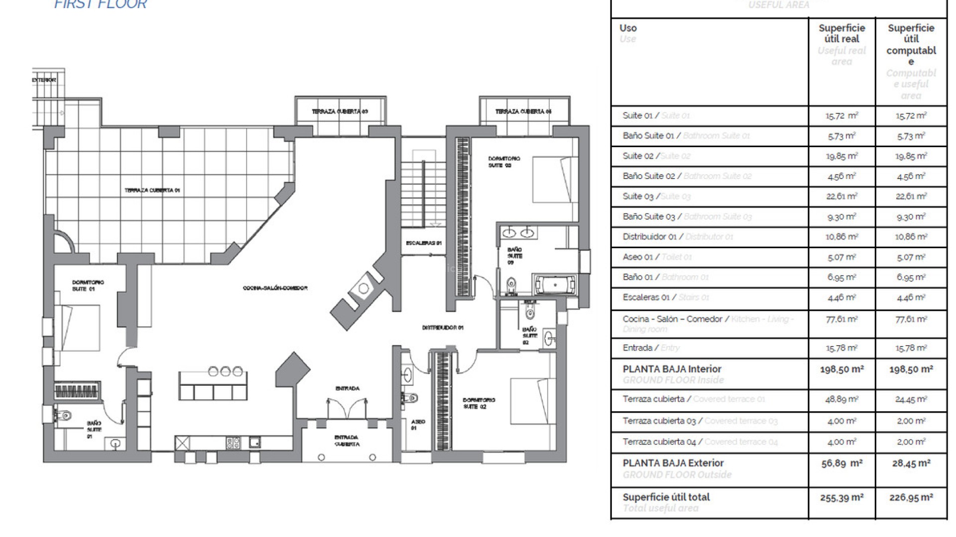
Villa de lujo ubicada en la Sierra de Altea, con siete dormitorios, una casa de invitados, vistas panorámicas al mar y a la montaña, tranquilidad y privacidad. Con una ubicación ideal cerca del centro de Altea y a 6 minutos de las playas y del campo de golf, esta propiedad de estilo mediterráneo con un diseño contemporáneo ofrece unos 920 m2 de superficie habitable. Fue reformada en 2017 utilizando materiales de alta calidad y con un estilo elegante, además de un exterior moderno dividido en tres niveles. El chalet de lujo está rodeada por un terreno de 2440 m2, ajardinado, cerrado y perfectamente cuidado, con variedad de flores, plantas maduras y unas vistas espectaculares. Un magnífico recibidor con una atractiva puerta de madera le da la bienvenida a esta propiedad excepcional y le conduce a un gran espacio abierto donde encontrará una sala de estar con chimenea, comedor y cocina de diseño totalmente equipada y con isla, ideal para el entretenimiento en compañía. Gracias a los grandes ventanales, se sorprenderá por sus excepcionales vistas al mar de la Bahía de Altea y Sierra Helada. Asimismo, verá los techos altos con vigas y la armonía de materiales nobles y naturales en toda la villa. En esta misma planta, hay un elegante dormitorio principal que también tiene vistas panorámicas al mar, armarios empotrados y baño en suite con ducha, bañera y lavabo doble. También dispone de dos dormitorios en suite, cada uno con su propio baño. En el piso inferior, al que se accede por una escalera interior adornada, encontrará otra área abierta, amplia y luminosa, con una sala de televisión, un comedor y una atractiva cocina abierta. Para mayor comodidad, tanto el lavadero como el trastero se encuentran en este nivel. En la planta baja de esta villa de lujo, hay un área de gimnasio, cuarto de instalaciones, almacenamiento adicional y un garaje cerrado para tres vehículos. Gracias a la distribución optimizada, esta propiedad es ideal para recibir una gran cantidad de invitados y adecuada para grandes familias, donde todos pueden mantener su privacidad y disfrutar de los muchos rincones relajantes interiores y exteriores. Al pasear por el jardín y justo frente a un estanque con peces exóticos, verá la casa de huéspedes independiente con diseño marroquí y maravillosas vista al mar y a su jardín privado. Esta casa incluye todas las comodidades posibles, así como aire acondicionado. Además, dispone de alarma de seguridad conectada, televisión por cable e Internet por fibra óptica.
Esta información que se proporciona aquí está sujeta a errores y no forma parte de ningún contrato. La oferta se puede cambiar o retirar sin previo aviso. Los precios no incluyen los costes de compra