Denne teksten kan være oversatt av Google Translate, og kan derfor inneholde skrivefeil.
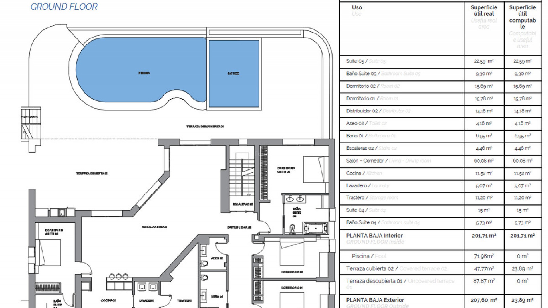
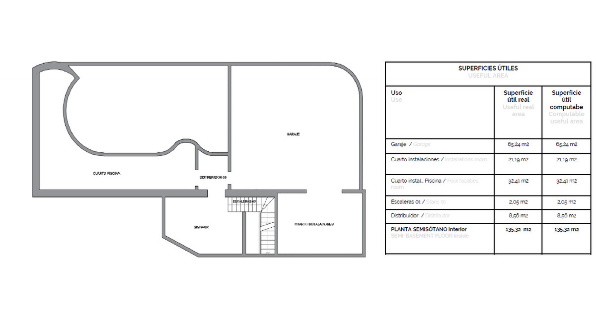
Luksusvilla beliggende i Sierra de Altea, med syv soverom, et gjestehus, panoramautsikt over havet og fjellene, ro og privatliv. Ideelt plassert nær sentrum av Altea og 6 minutter fra strendene og golfbanen, tilbyr denne eiendommen i middelhavsstil med moderne design rundt 920 m2 boareal. Den ble renovert i 2017 med materialer av høy kvalitet og med en elegant stil og et moderne eksteriør fordelt over tre etasjer. Luksusvillaen er omgitt av en tomt på 2440 m2, anlagt, inngjerdet og perfekt velstelt, med et utvalg av blomster, modne planter og spektakulær utsikt. En praktfull entré med en attraktiv tredør ønsker deg velkommen til denne eksepsjonelle eiendommen og fører deg inn i et stort åpent rom hvor du finner en stue med peis, spisestue og et fullt utstyrt designerkjøkken med kjøkkenøy, ideelt for underholdning i selskap. Takket være de store vinduene vil du bli overrasket av den eksepsjonelle havutsikten over Altea-bukten og Sierra Helada. Det er også to soverom med eget bad, hvert med eget bad. I underetasjen, som nås via en utsmykket innvendig trapp, finner du et annet lyst og romslig åpent område med TV-stue, spisestue og et attraktivt åpent kjøkken. For ekstra bekvemmelighet ligger både vaskerom og bod i denne etasjen. I første etasje i denne luksusvillaen er det et treningsområde, vaskerom, ekstra lagringsplass og en lukket garasje for tre kjøretøy. Takket være den optimaliserte planløsningen er denne eiendommen ideell for å være vertskap for et stort antall gjester og egnet for store familier, hvor alle kan bevare privatlivet sitt og nyte de mange avslappende innendørs- og utendørskrokene. Når du spaserer gjennom hagen og rett foran en dam med eksotiske fisk, vil du se det uavhengige gjestehuset med marokkansk design og fantastisk utsikt over havet og den private hagen. Dette huset inkluderer alle mulige bekvemmeligheter, samt klimaanlegg. I tillegg er det en tilkoblet sikkerhetsalarm, kabel-TV og fiberoptisk internett.
Denne informasjonen gitt her er underlagt feil og inngår ikke i noen kontrakt. Tilbudet kan endres eller trekkes tilbake uten varsel. Prisene inkluderer ikke andre kostnader