Denne teksten kan være oversatt av Google Translate, og kan derfor inneholde skrivefeil.
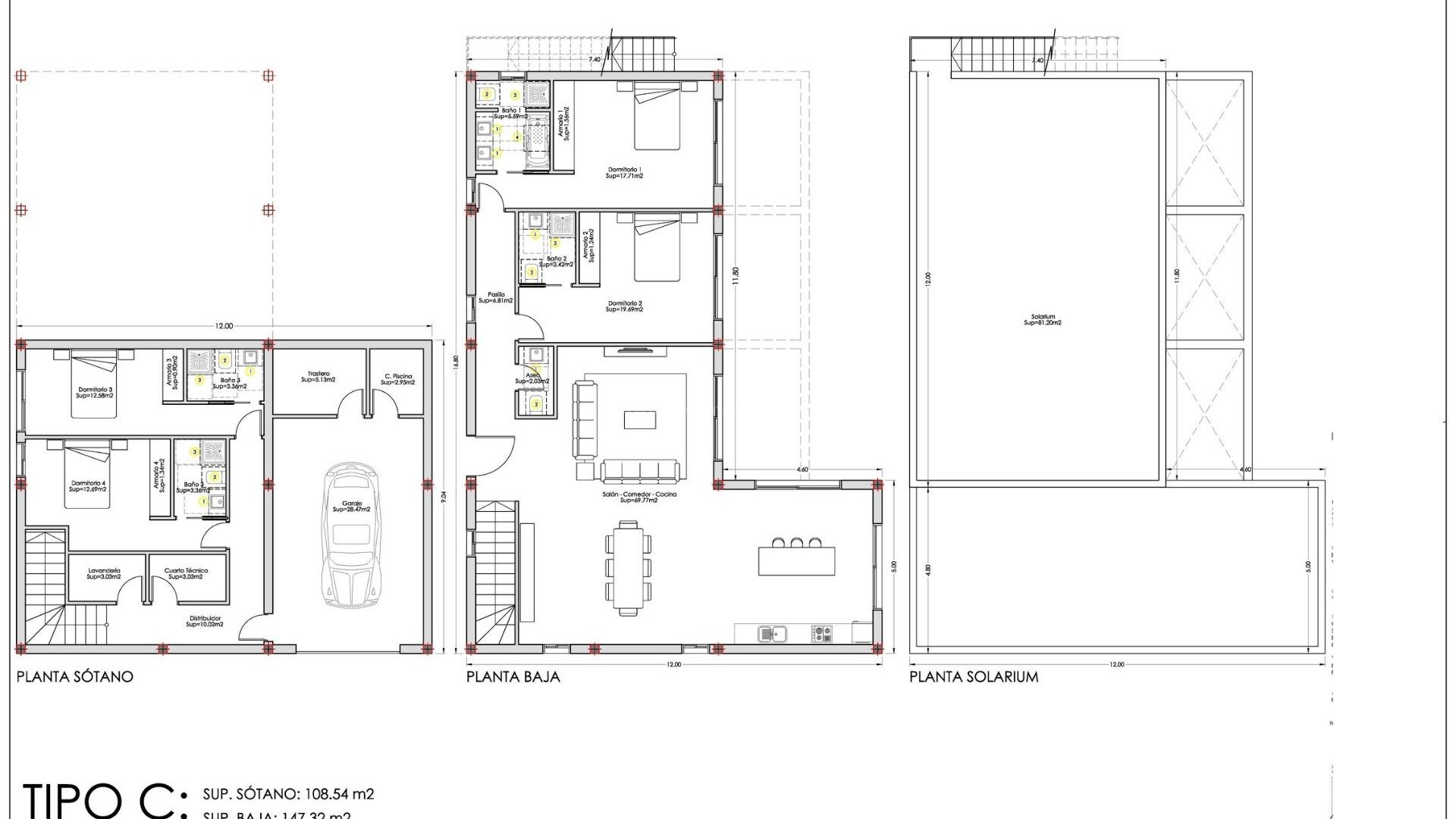
Luksuriøse nybyggede villaer i Finestrat nær Benidorm Eksklusiv samling av bærekraftige frittstående villaer Dette prestisjefylte prosjektet består av 36 frittstående villaer i den ettertraktede urbanisasjonen Bahia Golf i Finestrat, bare 3,5 km fra Middelhavskysten. Disse moderne boligene er designet for å kombinere luksus, komfort og bærekraft, og tilbyr en eksepsjonell livsstil på Costa Blanca, omgitt av natur, men likevel nær alle tjenester. Hver villa har 3 eller 4 romslige soverom, privat hage og privat evighetsbasseng. Utvalgte enheter har fantastisk havutsikt, mens alle eiendommene ligger på store tomter på over 500 m2 med et bebygget areal fra 222 m2. Fleksible planløsninger med kjeller og solarium på taket Kjøpere kan velge mellom fire forskjellige planløsninger, alle nøye designet for å maksimere plass og naturlig lys. Hver villa har en kjeller med privat parkering, bod, vaskerom og to soverom med eget bad, som er koblet til en engelsk patio for naturlig lys og ventilasjon. Første etasje har ett eller to ekstra soverom med eget bad, gjestetoalett og et åpent kjøkken som er koblet til stue og spisestue, med direkte tilgang til terrassen og bassenget. Hver eiendom har et solarium på taket, som tilbyr panoramautsikt over fjellene eller havet og muligheten til å installere et boblebad. Høy kvalitet og BREEAM-sertifisert energieffektivitet Disse villaene er bygget i henhold til BREEAM-sertifiseringsstandarder, som sikrer utmerket energiytelse og miljøansvar. Premium-spesifikasjoner inkluderer: Doble vinduer i aluminium med termisk brytning og elektriske skodder Fullt installert sentralvarme Motorisert inngangsport Privat svømmebasseng og anlagt hage Moderne kjøkken fra PORCELANOSA utstyrt med hvitevarer Designer-bad med møbler, speil og dusjkabinett Porselenfliser fra PORCELANOSA Førsteklasses beliggenhet nær strender, golf og shopping Finestrat er en sjarmerende by som ligger mellom fjellene og havet, og tilbyr ro og fred samtidig som den ligger bare noen minutter fra det livlige Benidorm. Området kombinerer naturlig skjønnhet med utmerket infrastruktur, internasjonale skoler, restauranter og kjøpesentre. Avstander til viktige severdigheter Benidorm-strendene 3,5 km La Marina kjøpesenter 1 km Puig Campana Golf 3 km Benidorm gamleby 4 km Alicante flyplass 55 km Tilgang til motorvei A7 2 km Lev middelhavsdriften i Finestrat Disse villaene tilbyr den perfekte balansen mellom luksus, natur og tilkobling på Costa Blanca. Kontakt oss i dag for å få mer informasjon eller for å avtale en privat visning av disse eksepsjonelle nybyggene i Finestrat.
Denne informasjonen gitt her er underlagt feil og inngår ikke i noen kontrakt. Tilbudet kan endres eller trekkes tilbake uten varsel. Prisene inkluderer ikke andre kostnader