Denne teksten kan være oversatt av Google Translate, og kan derfor inneholde skrivefeil.
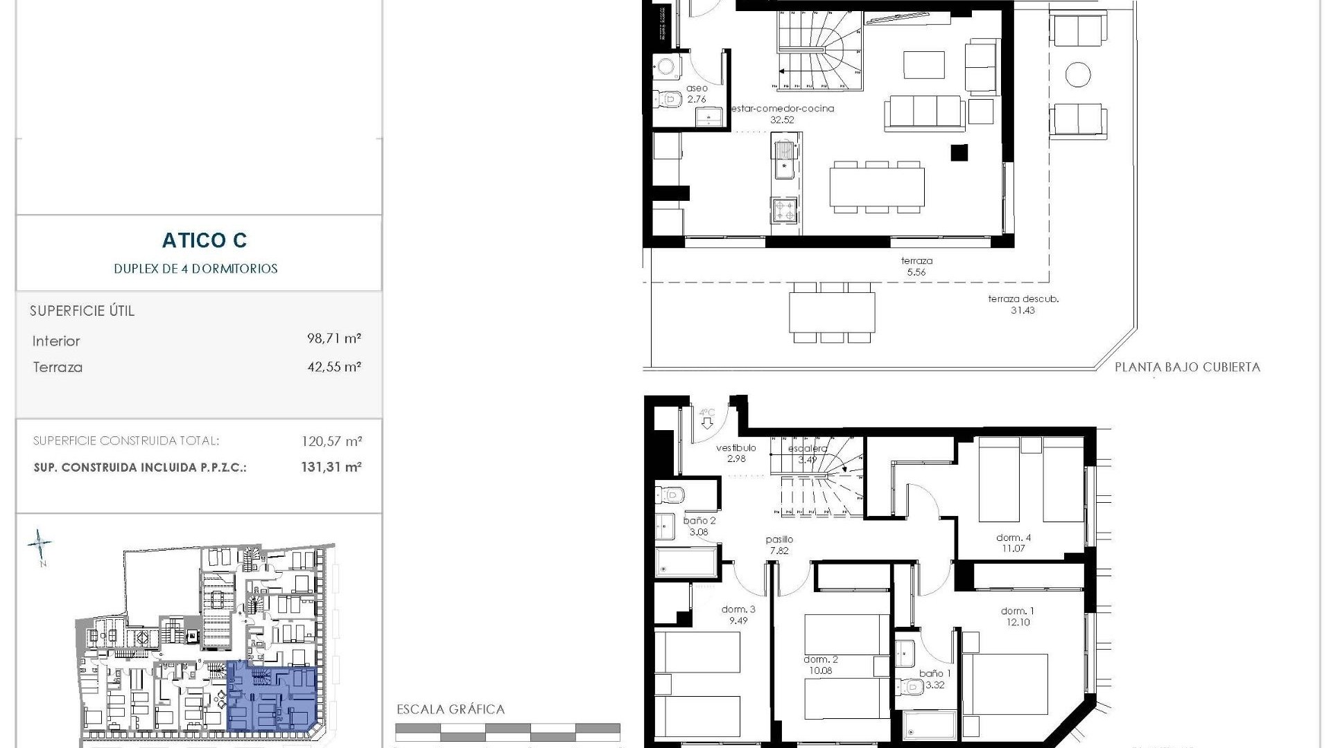
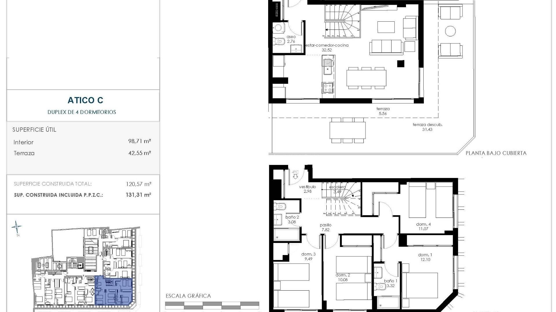
Nybyggede duplex-penthouse-leiligheter i Murcia sentrum nær Plaza Mayor Eksklusivt boende i hjertet av Murcia Oppdag disse romslige nybyggede duplex-penthouse-leilighetene som ligger i sentrum av Murcia, bare noen skritt fra Plaza Mayor de Murcia. Dette prosjektet ligger mellom det historiske sentrum av byen og handelsområdet nær El Corte Ingles, og tilbyr en unik mulighet til å nyte moderne komfort i et av de mest ettertraktede urbane områdene i regionen Murcia. Murcia er kjent for sitt pulserende byliv, imponerende barokke arkitektur, berømte gastronomi og behagelige klima gjennom hele året. Å bo i sentrum betyr at du har restauranter, butikker, kulturarenaer, skoler og alle nødvendige tjenester innen gangavstand. Romslige duplex-penthouse-leiligheter med 3 og 4 soverom og store terrasser Disse eksklusive penthouse-leilighetene har 3 eller 4 soverom fordelt på to etasjer, og tilbyr romslige og funksjonelle boarealer som er ideelle for familier eller de som ønsker ekstra plass til å jobbe hjemmefra. En av de mest fremtredende egenskapene er de store private terrassene på over 40 m2, som tilbyr åpen utsikt og rikelig med naturlig lys. Disse uteområdene er perfekte for å slappe av, underholde gjester eller nyte utendørs servering i sentrum. Bygningen har heis og full tilgjengelighet for personer med nedsatt mobilitet. Valgfrie parkeringsplasser og boder er tilgjengelig mot en ekstra kostnad, noe som gir ekstra bekvemmelighet i denne førsteklasses urbane omgivelsen. Høy kvalitet og energieffektivitet Hver penthouse er designet for å gi maksimal komfort og effektivitet. Det fullt utstyrte kjøkkenet med integrerte hvitevarer skaper et perfekt rom for matlagingsentusiaster. Viktige funksjoner inkluderer: Energieffektivitetsklasse A Fullt installert klimaanlegg med kanaler Gulvvarme Hjemmeautomatiseringspakke Videointercom-system LED-belysning i stue, bad og soverom Disse høykvalitets spesifikasjonene sikrer lavt energiforbruk, reduserte utslipp og optimal termisk komfort gjennom hele året. Førsteklasses beliggenhet og avstander Murcia katedral 0,5 km Plaza Mayor de Murcia 0,3 km Murcia togstasjon 1,5 km Altorreal Golf 15 km Murcia internasjonale lufthavn 25 km Middelhavsstrender 50 km Sikre deg din luksuriøse penthouse i Murcia Disse nybygde duplex-penthousene kombinerer plass, energieffektivitet og en uovertruffen sentral beliggenhet i Murcia. Kontakt oss i dag for å få mer informasjon eller for å avtale en privat visning og sikre deg ditt nye hjem i hjertet av byen. 441
Denne informasjonen gitt her er underlagt feil og inngår ikke i noen kontrakt. Tilbudet kan endres eller trekkes tilbake uten varsel. Prisene inkluderer ikke andre kostnader