Denne teksten kan være oversatt av Google Translate, og kan derfor inneholde skrivefeil.
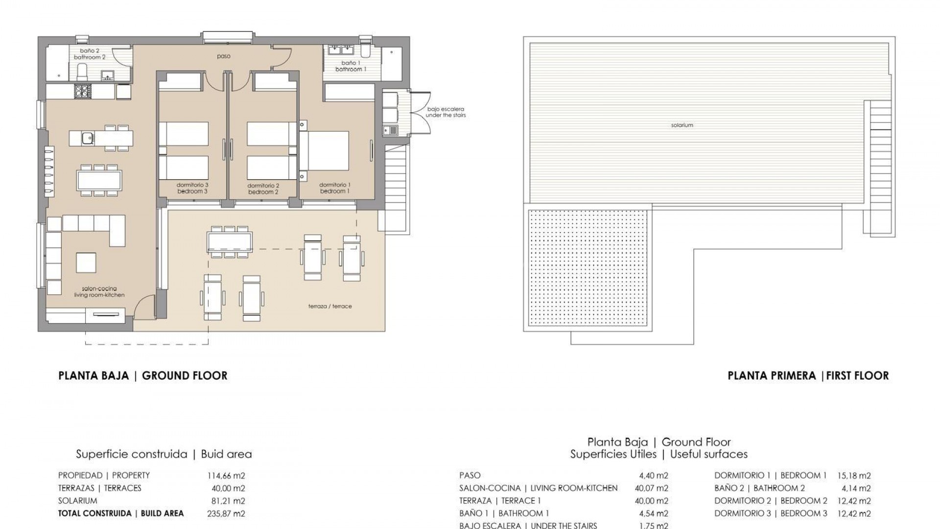
Nybyggede villaer på Vistabella Golf Resort – Orihuela Opplev moderne middelhavsliv i hjertet av Costa Blanca med disse fantastiske nybyggede villaene på Vistabella Golf Resort. Dette eksklusive boligprosjektet ligger mellom San Miguel de Salinas og Los Montesinos, i kommunen Orihuela, og tilbyr luksus, komfort og en uovertruffen beliggenhet for både golfentusiaster og livsstilsøkende. To forskjellige villamodeller Kjøpere kan velge mellom to elegante design: Enetasjes villaer med 3 soverom, 2 bad og solarium på taket. Toetasjes villaer med 4 soverom, 3 bad og solariumterrasse i første etasje. Begge modellene ligger på tomter på ca. 300 m² og har privat basseng og parkering på stedet. Førsteklasses kvalitet og moderne komfort Alle villaene har luksuriøs finish, inkludert fullt installert klimaanlegg, innredet kjøkken med hvitevarer, utvendig belysning, elektriske persienner og elegante dusjvegger på badene. Kombinasjonen av stil og funksjonalitet sikrer et hjem som er både vakkert og praktisk. Eksklusiv livsstil på golfresort Vistabella Golf Resort er et inngjerdet boligområde med en 18-hulls golfbane, paddle-tennisbaner, en bowlingbane, et supermarked og et bredt utvalg av barer og restauranter. Fremtidige oppgraderinger vil løfte resortet til et ekte 5-stjerners reisemål, med planlagte tillegg som en champagnebar, sushibar, spahotell, kunstig strand, tennisbane, fotballbane og gourmetbar. Førsteklasses beliggenhet på Costa Blanca Resortet har utmerket tilgang til regionens beste strender, golfbaner og tjenester. Avstander til viktige severdigheter inkluderer: La Mata-stranden: 18 km Guardamar del Segura-stranden: 20 km Torrevieja: 15 km Alicante lufthavn: 55 km Murcia lufthavn: 68 km Villamartín Golf: 12 km Las Colinas Golf & Country Club: 14 km Drømmehuset ditt venter Enten det er som permanent bolig, feriehus eller utleieinvestering, tilbyr disse nybygde villaene på Vistabella Golf Resort eksepsjonell verdi i et av Spanias mest ettertraktede kystområder. Kontakt oss i dag for å avtale en visning og sikre deg en plass i dette luksuriøse golfsamfunnet. 441
Denne informasjonen gitt her er underlagt feil og inngår ikke i noen kontrakt. Tilbudet kan endres eller trekkes tilbake uten varsel. Prisene inkluderer ikke andre kostnader