Denne teksten kan være oversatt av Google Translate, og kan derfor inneholde skrivefeil.
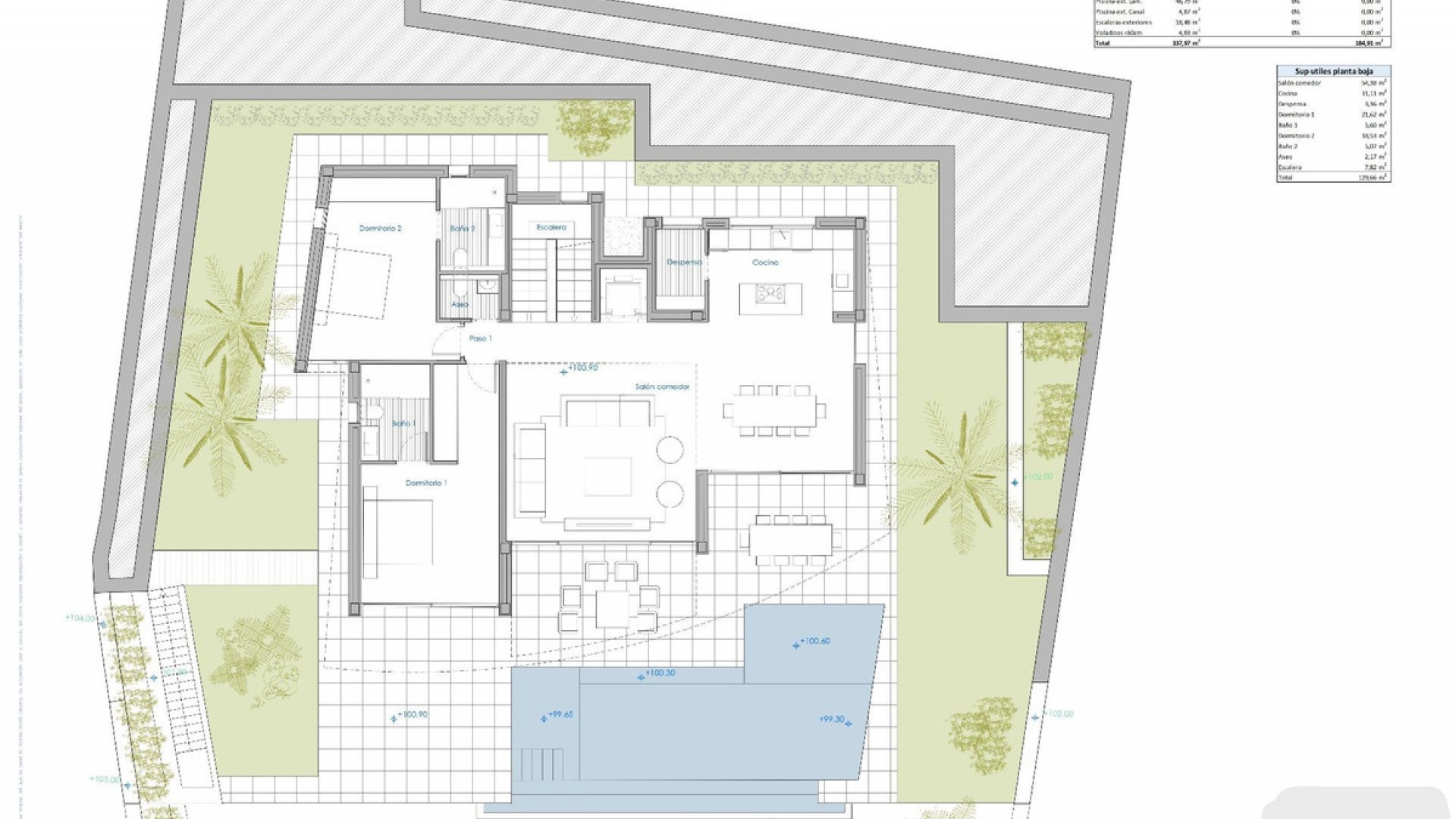
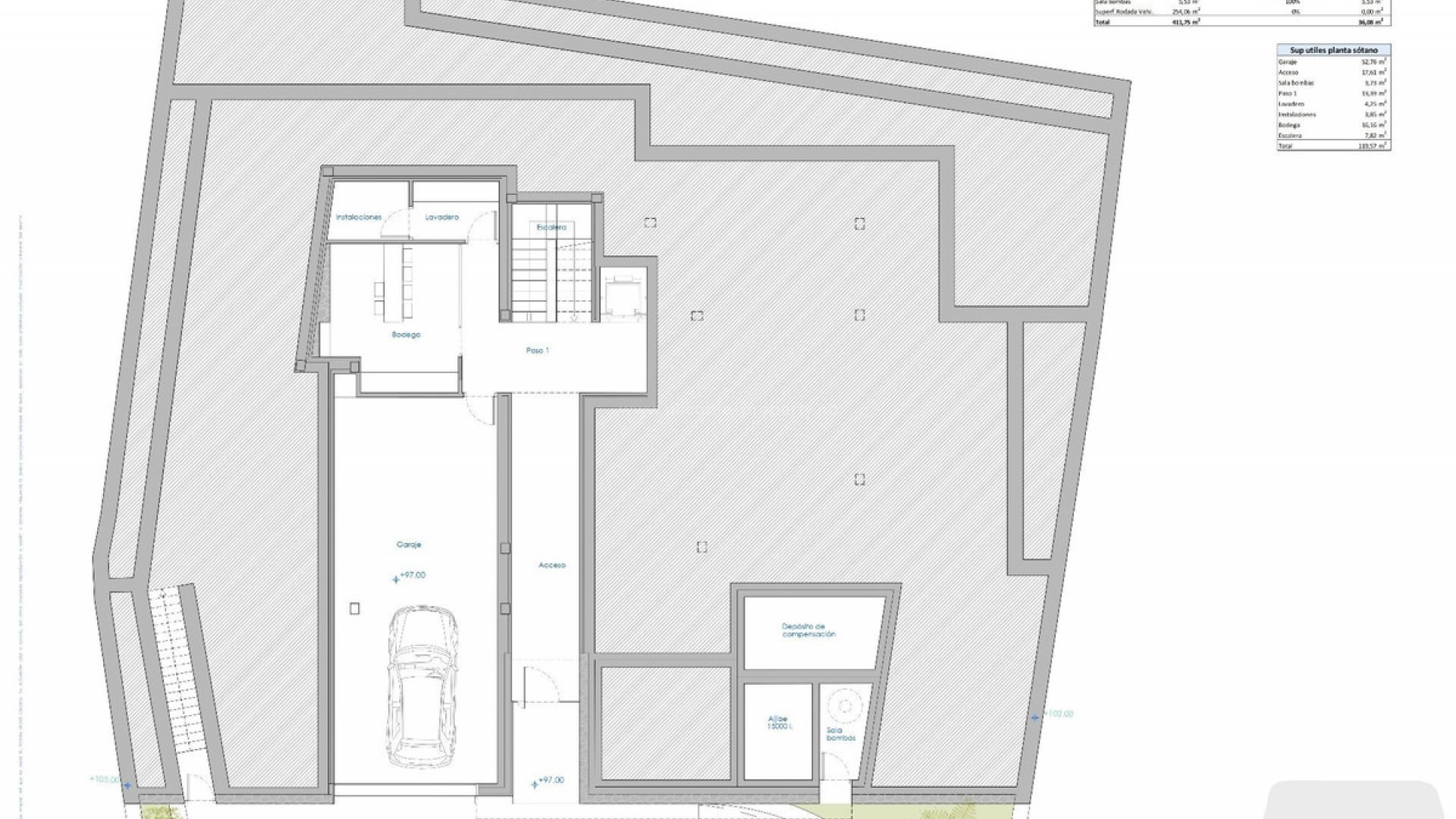
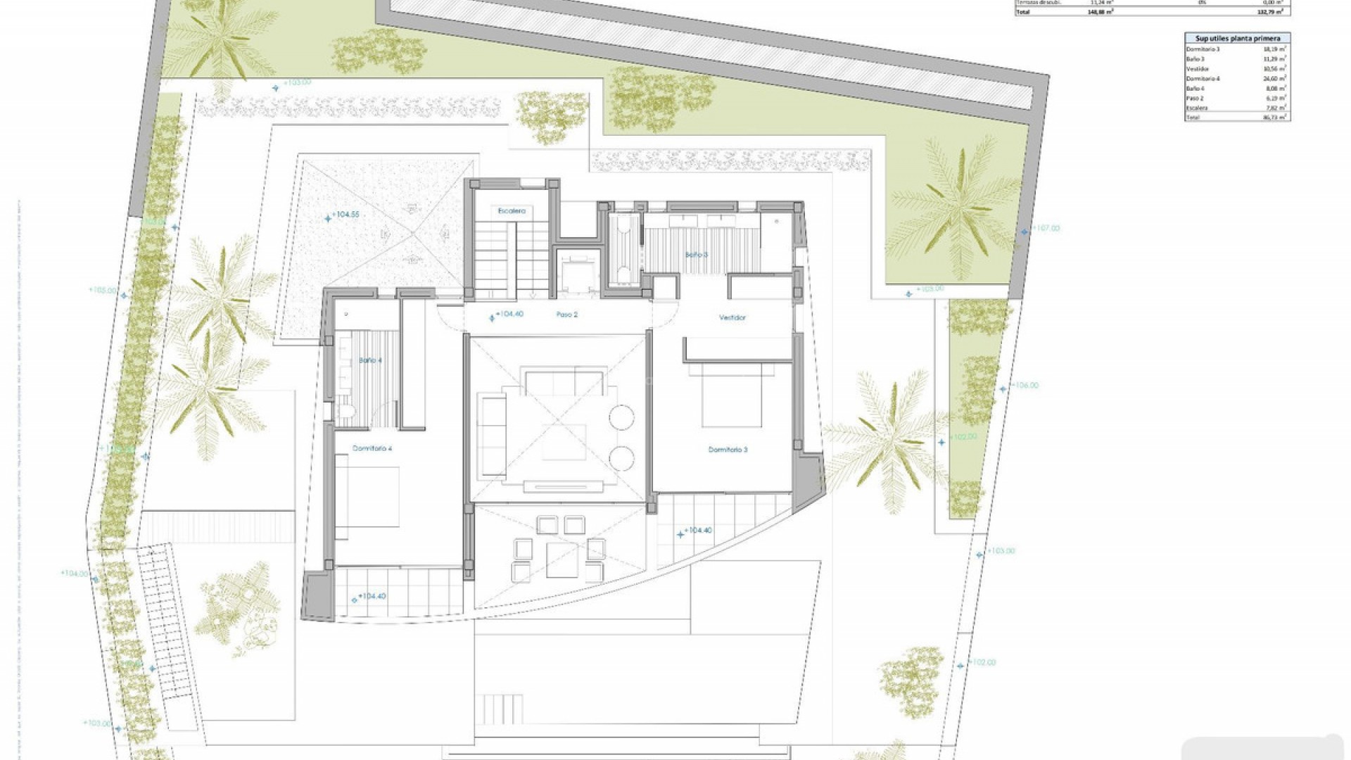
BELIGGENHET: Denne vakre luksusvillaen ligger i byen Calpe, i provinsen Alicante, i et rolig og veletablert område. Sentrum av Calpe, med sine strender, ligger omtrent 5400 meter unna. EIENDOM: Denne villaen, med et bebygd areal på 898 m², ligger på en tomt på 1042 m² og tilbyr spektakulær utsikt over havet, Peñón de Ifach og Calpe. Den er fordelt over tre etasjer, forbundet med en intern trapp og en heis. Fra inngangen til hagen gjennom automatiske porter, har vi direkte tilgang til garasjeinngangen i halvkjelleretasjen, hvor vi finner en romslig utendørs parkeringsplass med plass til flere biler. HALVKJELLERETASJE: Fra gaten har du tilgang til tomten og den 52 m² store garasjeinngangen. Her er det også et vaskerom og en vinkjeller. HOVEDETASJE: Vi går opp via innvendige trapper eller heis og kommer direkte inn i huset, hvor vi finner en romslig stue-spisestue med tilgang til en 25 m² veranda og bassengområdet med en stor terrasse på 78 m². I denne etasjen er det også et åpent kjøkken med fullt utstyrt kjøkken, samt to soverom med eget bad og et gjestetoalett. ØVRE ETASJE: To doble soverom, hvert med eget bad og to åpne terrasser. UTSTYR: - Teknisk snekring med sikkerhetsglass - Fullt utstyrt kjøkken med Siemens-hvitevarer - LED-belysning - Aerotermisk system for varmtvann og gulvvarme - Kanalisert klimaanlegg (varmt og kaldt) i hele huset - Innebygde garderober, elektriske skodder, innvendig alarm, forhåndsinstallasjon for utvendig alarm og sikkerhetskameraer - Rektangulært evighetsbasseng (10x3,3 meter) - Grillområde, vaskerom, hage, vinkjeller - Sørorientering - Automatiske inngangsporter - Energiklasse: A Ring oss for et besøk eller mer informasjon. Vi jobber for å finne drømmehuset ditt. Vi viser deg denne eiendommen hvis du er interessert, eller vi leter for deg til vi finner det du leter etter. Deretter tar vi oss av alt nødvendig papirarbeid frem til nøklene overleveres!
Denne informasjonen gitt her er underlagt feil og inngår ikke i noen kontrakt. Tilbudet kan endres eller trekkes tilbake uten varsel. Prisene inkluderer ikke andre kostnader