Denne teksten kan være oversatt av Google Translate, og kan derfor inneholde skrivefeil.
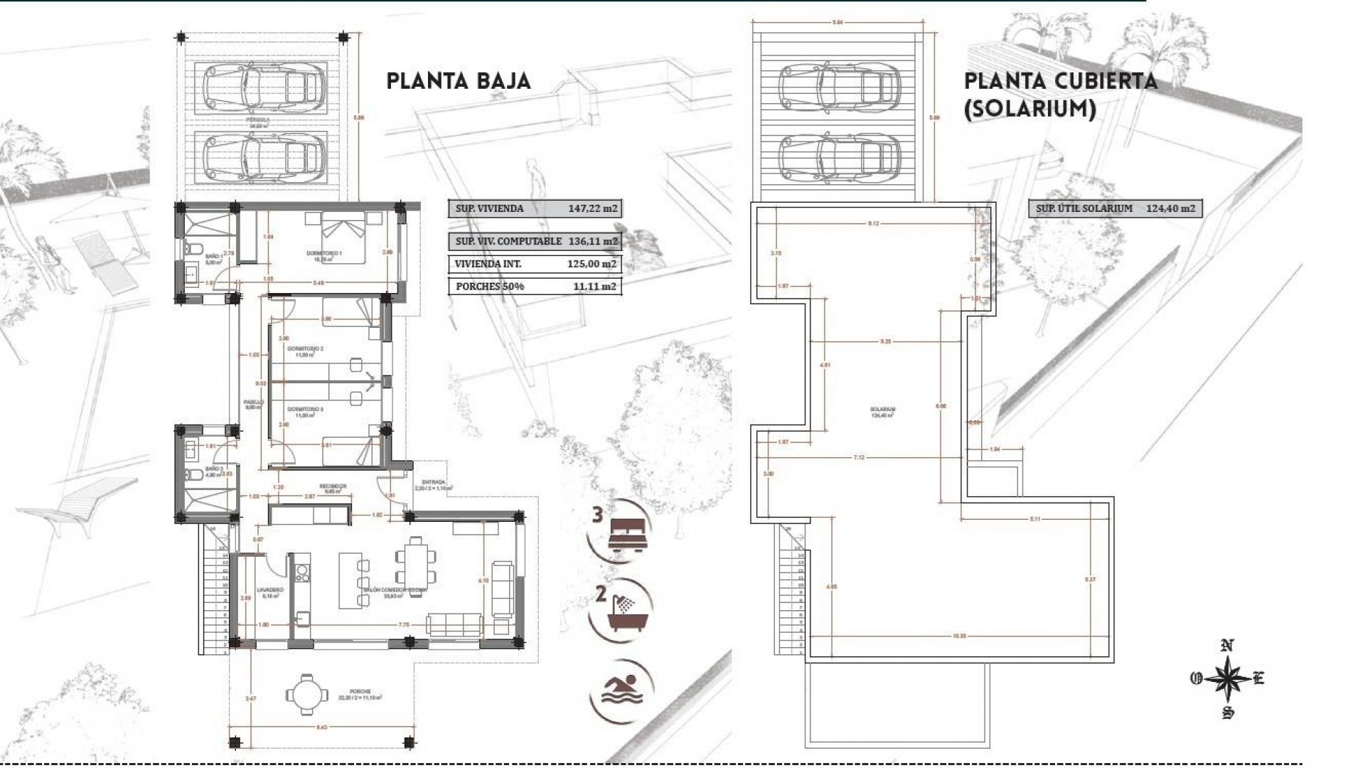
Nybygget villa med privat basseng i Vistabella, Jacarilla Eksklusiv nybygget villa i naturlige omgivelser med golfbane Denne nybyggede villaen under selvpromotering ligger i det fredelige området Vistabella, i kommunen Jacarilla. Eiendommen ligger i naturlige omgivelser mellom Vistabella golfbane og La Pedrera-reservoaret, og tilbyr privatliv, åpen utsikt og en avslappet middelhavsstil. Området er ideelt for de som søker ro, samtidig som de ønsker å være nær kysten, golfbaner og daglige tjenester. Vistabella er et velkjent boligområde som er populært blant internasjonale kjøpere takket være golfbanen, lokale restauranter og nærheten til Orihuela Costa og Torrevieja. Jacarilla har beholdt sin tradisjonelle spanske sjarm og tilbyr lokale butikker, tjenester og en vennlig atmosfære hele året. Moderne planløsning i ett plan med romslige uteområder Villaen er fordelt på én etasje og er designet for å kombinere komfort, funksjonalitet og naturlig lys. Den har 3 soverom og 2 bad, inkludert et hovedsoverom med eget bad. Den åpne stuen og spisestuen er sømløst forbundet med det moderne kjøkkenet, og skaper et lyst og innbydende oppholdsrom. En overbygd terrasse på 22 kvm gir direkte tilgang til den private hagen, hvor et privat svømmebasseng og anlagte områder inviterer deg til å nyte friluftslivet. Den generøse tomten på 750 kvm inkluderer også parkeringsplass for to biler. Privat solarium med åpen utsikt Et av høydepunktene i denne villaen er det imponerende private solariet på 120 kvm, som er tilgjengelig via en utvendig trapp. Herfra kan du nyte åpen panoramautsikt over det omkringliggende landskapet, perfekt for soling, underholdning eller avslapning hele året. Kvalitetsspesifikasjoner og energieffektive funksjoner Villaen er bygget med kvalitetsmaterialer og moderne spesifikasjoner for å sikre komfort og effektivitet. Funksjonene inkluderer en forsterket sikkerhetsdør, aerotermisk system for varmt vann, elektriske persienner i stuen og soverommene, og forhåndsinstallasjon av kanalisert klimaanlegg. Disse elementene gir et ideelt grunnlag for et komfortabelt og energieffektivt hjem. Utmerket beliggenhet nær golf, natur og kysten Vistabella Golf ligger omtrent 2 km unna, mens La Pedrera-reservoaret ligger bare 1,5 km fra eiendommen, ideelt for naturelskere og friluftsliv. Strendene i Orihuela Costa ligger rundt 15 km unna. Alicante internasjonale lufthavn ligger omtrent 55 km unna, og tilbyr enkle forbindelser til store europeiske destinasjoner. Flere andre golfbaner og shoppingområder ligger innenfor 10 til 15 km. En unik mulighet på Costa Blanca Denne nybygde villaen i Vistabella er perfekt som permanent bolig, feriehus eller investeringsmulighet i et ettertraktet område. Kontakt oss i dag for å få mer informasjon og sikre deg ditt nye hjem i hjertet av Costa Blanca.
Denne informasjonen gitt her er underlagt feil og inngår ikke i noen kontrakt. Tilbudet kan endres eller trekkes tilbake uten varsel. Prisene inkluderer ikke andre kostnader