This text could be translated with Google Translate and can therefor contain errors.
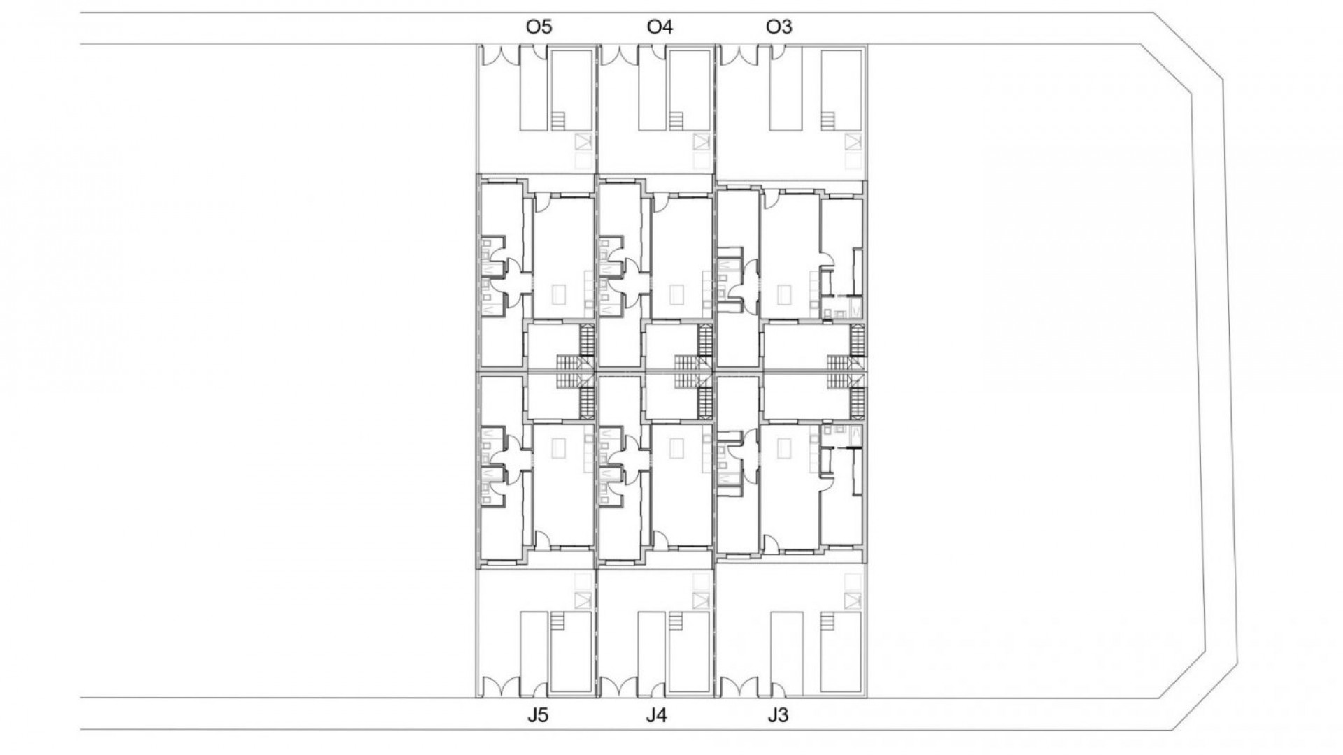
NEW BUILD TOWNHOUSES IN SAN JAVIER New Build luxury complex of 24 one level villas or on 2 floors with private pool, terraced area and solarium with Summer kitchen that allows you to enjoy all hours of sunshine, every day of the year. Each villa has 2 or 3 bedrooms and 2 fitted bathrooms on one level or 3 bedrooms and 3 fitted bathrooms on two levels. Designed with a contemporary style and open planned concept, comprising a fully-fitted kitchen and lounge-dining room. The development is located in San Javier (Murcia), near the beach, surrounded by services, parks, sports facilities and several Golf Courses. The property will meet the highest standards and will be equipped with: Private swimming pool with shower. Kitchen completely furnished and equipped with oven, microwave, fridge, integrated dishwasher, hob and extractor fan. Lighting: inside the property (dining room, kitchen, corridors and bathrooms) as well as in outdoor areas. Lined wardrobes with drawers. Fully fitted bathrooms with toilet, vanity unit, mirror and shower with screen panels. Pre-installation for ducted air conditioning. Solarium with Summer kitchen. Parking space on the plot. San Javier is close to all amenities with easy access to the beach, water sports, shops and the transport network. Here you can enjoy all of the facilities that San Javier has to offer such as the local shops, bars and restaurants as well as being near to shopping centres, the airport of Murcia and all of the beautiful places to be found along the Mar Menor. Corvera/Murcia airport is 30 minutes away and Alicante airport is 45 minutes away.
This info given here is subject to errors and do not form part of any contract. The offer can be changed or withdrawn without notice. Prices do not include purchase costs.