This text could be translated with Google Translate and can therefor contain errors.
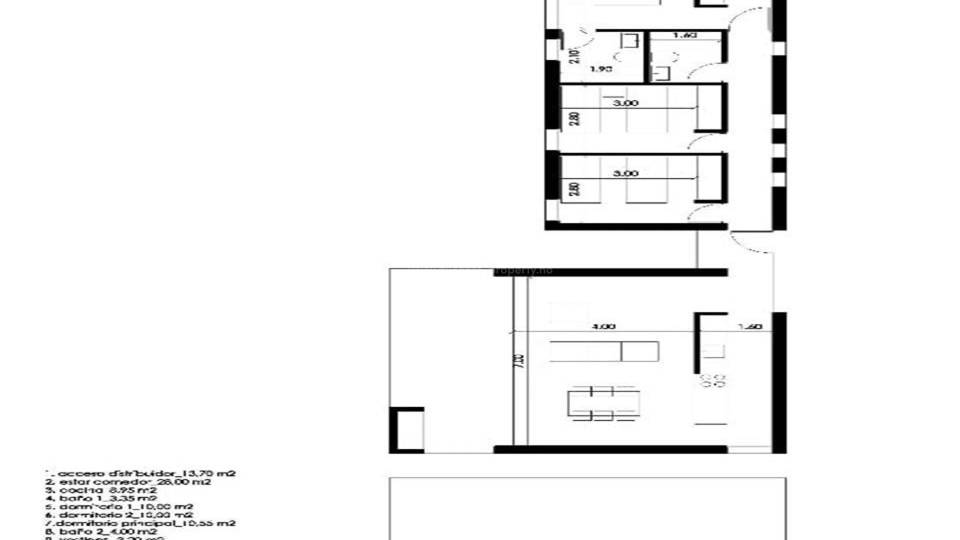
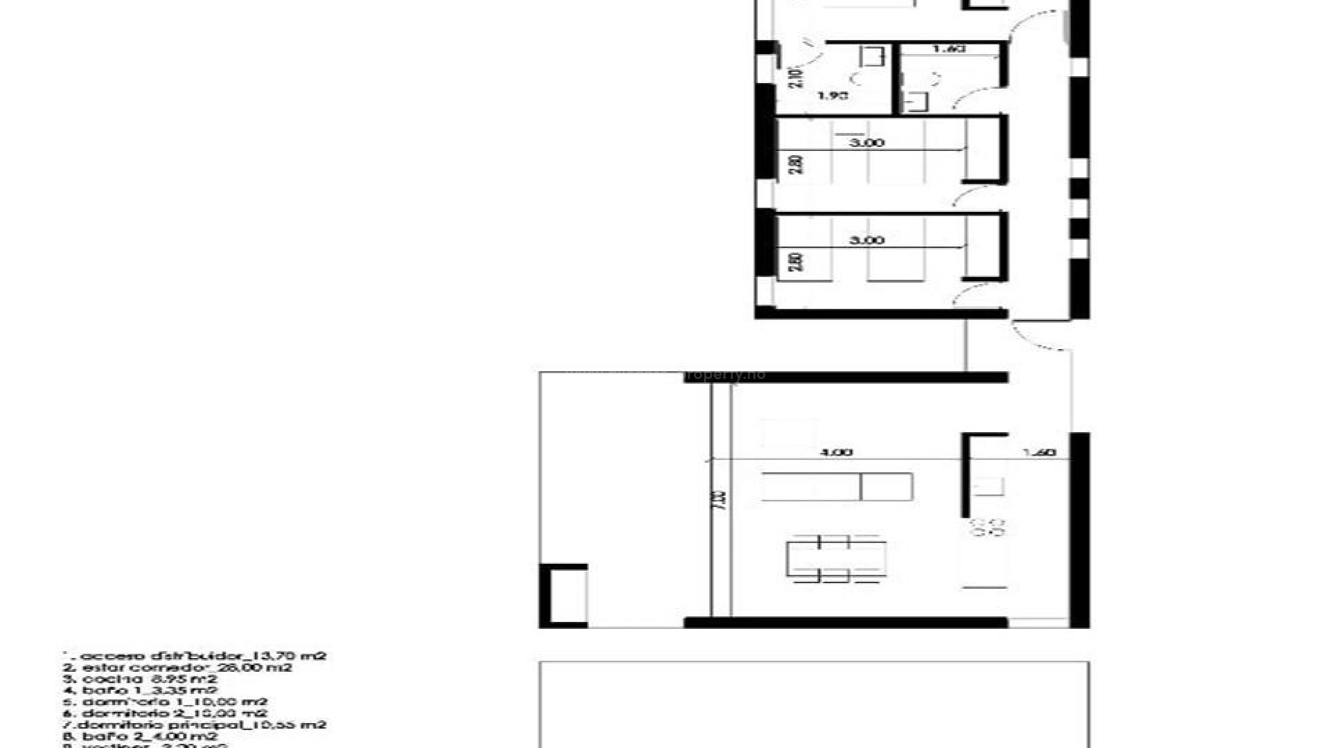
Cabrera-Style Villa Project – Custom Design Opportunity in Monte Solana, Pedreguer Starting from €635,000, this beautiful Formentera-style villa project is set on a sunny south-facing 800 m² plot in the highly desirable Monte Solana area of Pedreguer, offering open views, tranquillity, and excellent connectivity. The current concept proposes a single-level villa of 120 m², designed with clean Mediterranean lines, natural materials, and a strong emphasis on light, flow, and indoor–outdoor living. The price includes a 32 m² private swimming pool and a 20 m² connecting terrace, creating a seamless transition between interior spaces and outdoor living areas. Importantly, no licence has yet been applied for, giving buyers complete freedom. The design can be adapted, extended, or fully redesigned, or a totally bespoke villa can be created to suit personal tastes, lifestyle needs, or future plans. This flexibility makes the project ideal for clients who want to be involved in the design process and build a home that is truly their own. Monte Solana is a well-established residential area, just minutes from the village of Pedreguer, with easy access to the AP-7 motorway and a short drive to Dénia, Jávea and their beaches. The location combines peace, views, and convenience — perfect for a permanent residence, a luxury holiday home, or a smart investment. A rare opportunity to create a tailor-made Mediterranean home in one of the Costa Blanca North's most sought-after locations. ???? Contact us for design options, timelines, and custom build possibilities.
This info given here is subject to errors and do not form part of any contract. The offer can be changed or withdrawn without notice. Prices do not include purchase costs.