This text could be translated with Google Translate and can therefor contain errors.
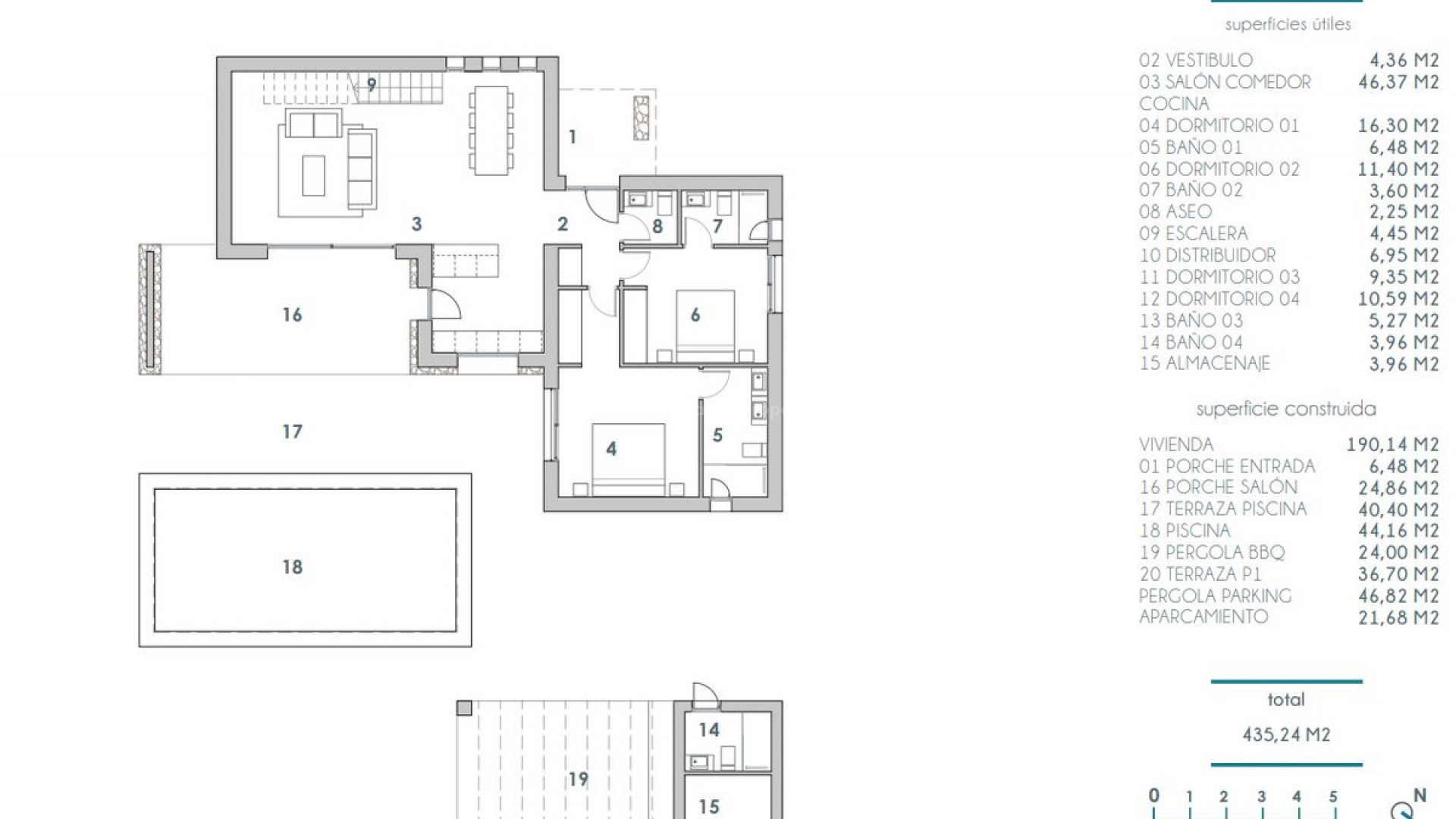
New build villa for sale in Moraira. Modern property with 4 bedrooms, private pool and carport in Pinar de L'Advocat. Ideal for living or investing on the Costa Blanca. This modern villa, yet to be built, is offered for sale in a new development in Pinar de L'Advocat in Moraira. The property is located just over a kilometre from the centre, with shops, restaurants, marina and beach. Description The property will have two floors and combines sleek architecture with natural materials such as natural stone. On the ground floor, there is a spacious living-dining room, a modern kitchen, guest toilet and two bedrooms with en-suite bathrooms. An internal staircase leads to the upper floor with two more bedrooms, both with access to a private terrace and a shared bathroom. The living room and kitchen offer direct access to the covered terrace and the sun terrace surrounding the 40 m² swimming pool. Next to the pool is a pergola with barbecue, a storage room and a fourth bathroom. The low-maintenance garden offers privacy and tranquillity. There is a carport for two cars. The villa is equipped with pre-installation for underfloor heating and alarm, ducted air conditioning, double glazing and an outdoor shower. Details Villa for sale in Moraira New build in Pinar de L'Advocat4 bedrooms, 4 bathroomsPrivate swimming pool of 40 m²Carport for 2 carsLow-maintenance gardenWhy view this villa Near the centre of MorairaModern layout with lots of lightSleek design with natural materialsNew build with contemporary amenitiesThis villa is ideal for year-round living or for rental. Interested in this project? Ask us for more information!
This info given here is subject to errors and do not form part of any contract. The offer can be changed or withdrawn without notice. Prices do not include purchase costs.